德國工業(yè)4.0智造

  • 健康環(huán)保
  • 免費服務
  • 三年質保
  • 本地體驗
首頁 > 案例中心 > 現代 > 休閑時光

休閑時光 2790

128㎡#三室一廳兩衛(wèi)#現代

案例介紹
河北省 - 保定市 - 唐縣 唐堯新城

簡單美麗,舒適而不繁瑣,經濟實惠。

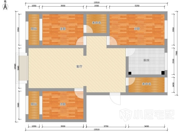
戶型圖

客廳
餐廳
主臥
次臥
次臥書桌
次臥
次臥
廚房
河北省-保定市
設計經驗1 作品4
  • 現代
  • 簡約
  • 產品陪購

免費申請設計

設計師上門服務全程免費,禁止以任何形式收取費用。

請輸入驗證碼

驗證碼輸入錯誤